28239 Bremen / Gröpelingen, Reihenmittelhaus zum Kauf
Kontaktdaten
-
NameHerr Werner Sauer
-
FirmaSauer Immobilien GbR
-
AdresseTiefer 15
28195 Bremen -
E-Mail Zentrale
-
Tel. Zentrale
-
Fax0049421490850
Energieausweis
-
EnergieausweistypBedarfsausweis
-
Gültig bis11.03.2035
-
Baujahr1926
-
Wesentlicher EnergieträgerGas
-
Endenergiebedarf236,30 kWh/(m²·a)
verkauft
Dieses Objekt ist zur Zeit leider nicht verfügbar.
Objektdaten
-
Objekt ID189
-
ObjekttypenHaus, Reihenmittelhaus
-
Adresse28239 Bremen / Gröpelingen
-
Etagen im Haus3
-
Wohnfläche ca.107 m²
-
Grundstück ca.169 m²
-
Nutzfläche ca.68 m²
-
Vermietbare Fläche ca.175 m²
-
Zimmer6
-
Schlafzimmer5
-
Badezimmer3
-
Balkon/Terrasse3
-
Wesentliche EnergieträgerGas
-
Baujahr1926
-
Zustandrenovierungsbedürftig
-
Verfügbar absofort frei
-
Käuferprovision3,57% einschließlich gesetzlicher MwSt. vom Käufer zu zahlen.
-
Kaufpreis165.000 EUR
Ausstattung / Merkmale
- Balkon/Terrasse
- Kamin
- Keller
Objektbeschreibung
Beschreibung
Willkommen in ihrem neuen Zuhause!
Dieses Alt Bremer Reihenmittelhaus Bj. 1926/27 liegt in einer ruhigen Wohnstraße im Bremer Stadtteil Gröpelingen, genauer im beliebten Halmerweg. Die familienfreundliche Lage, gute Infrastruktur und das attraktive Grundstück machen dieses Objekt ideal für Paare junge Familien oder Kapitalanleger.
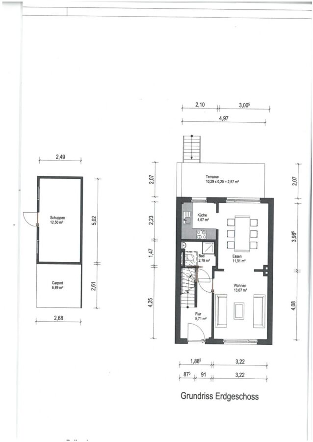
Um die Bequemlichkeit des Grundstückes abzurunden hat der Garten vom rückwärtigen Bereich des Hauses eine Zuwegung. Auf dem Grundstück befindet sich ein massives Gartenhaus ca.19 m2 mit Satteldach und eine Feuerstelle. Ein überdachter Freisitz hier garantiert wunderschöne Sommerabende im grünen. Von der Terrasse des Haupthauses führt eine Treppe (erneuert 2019) in den Garten. Dieser direkte Zugang ist sehr wertvoll da er zu einem liebevoll angelegten Garten führt, ideal für das Familienleben im grünen.
Das Haus überzeugt durch eine durchdachte Raumaufteilung auf insgesamt 3 Etagen plus Keller.
Im Erdgeschoss ca. 41 m2 befindet sich ein großzügiger Wohn und Essbereich und eine eingerichtete Arbeitsküche mit Zugang zu einer Terrasse und Garten. Im Wohnzimmer befindet sich für gemütliche Winterabende ein Kaminofen. Auf dieser Etage können Sie ein modernes Duschbad von (2017) nutzen.
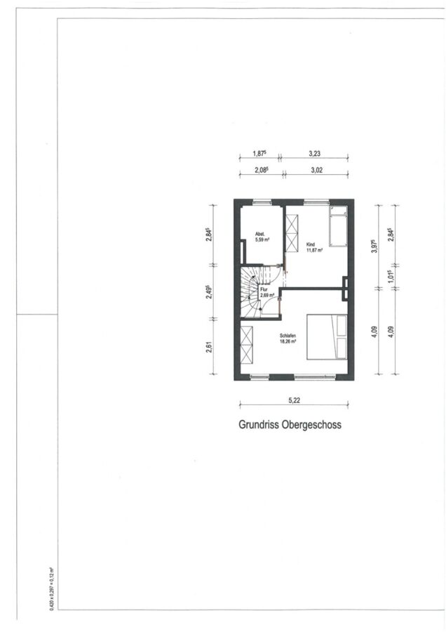
Im 1. Obergeschoss ca.38 m2 erwarten Sie 3 Räume. Hier besteht die Möglichkeit eine zusätzliche Küche oder ein weiteres Bad einzurichten. Hier könnte eventuell eine kleine Einliegerwohnung entstehen da die entsprechenden Anschlüsse vorhanden sind.
Das darüber befindliche Dachgeschoss ca.28 m2 hat 2 gemütliche Zimmer eins mit Dachgaube das andere mit Erker. Auch hier befindet sich ein Bad mit Fenster.
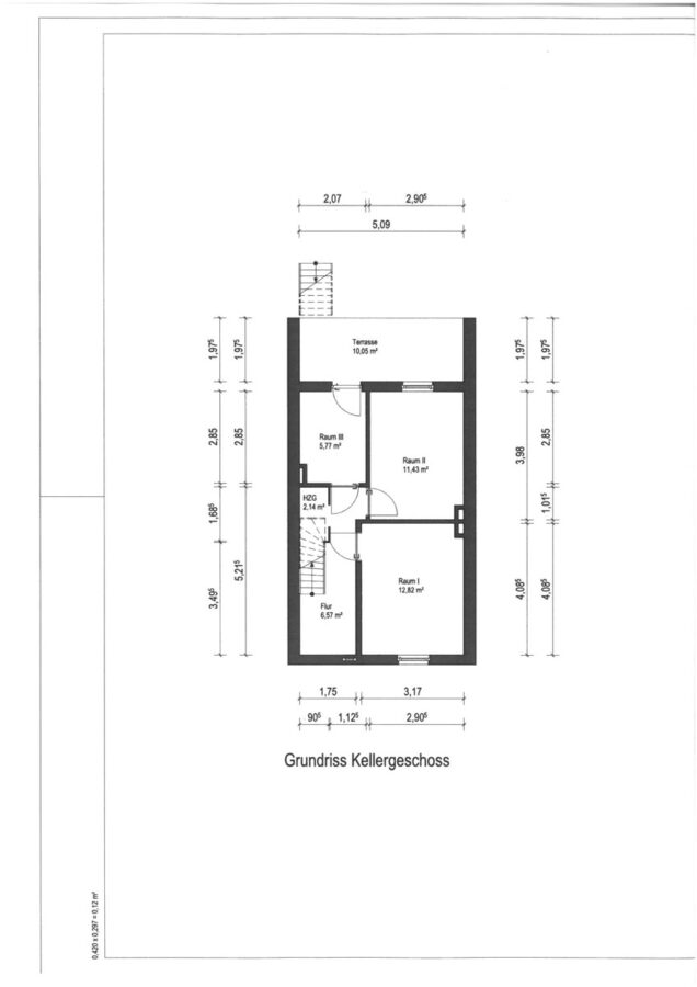
Das Haus ist voll unterkellert. Der Keller hat einen Zugang von der Gartenseite. Diese geräumige Nutzfläche hält reichlich Platz für Hobbys bereit. Das Gebäude hat einige Modernisierungen erfahren Holzfenster mit Isolierverglasung und Rollläden (im Jahr 2000). eine zentrale Gas Brennwertheizung ( im Jahr 2012) auch wurde das Dach schon einmal erneuert.
Ausstattung
- Einbauküche
- Kaminofen mit Bestandsschutz
- Holzfußböden
- Rollläden
- Holzfenster mit ISO-Verglasung
- Gartenhaus
- 2 Bäder eins davon wurde 2017 komplett erneuert
- Markisen am Haus und Gartenterrasse
- Grundwasserbrunnen
Sonstige Informationen
Besonderheiten:
- Garten mit Südausrichtung und rückwärtiger Zuwegung
- Vollkeller ca. 49 m2 mit der Möglichkeit für einen Hauswirtschaft/Waschraum (zur Zeit Badezimmer)
- 3 Kellerräume
- Bausubstanz, in der Vergangenheit wurden einige Investitionen getätigt. Dach, Außenfassade, Heizung, Fenster mit Rollläden, Sanitär in Teilbereichen. Stand heute hat das Haus einen überschaubaren Reparaturstau.
Fazit:
Dieses Altbremer Reihenmittelhaus am Halmerweg bietet Ihnen eine hervorragende Gelegenheit, Wohneigentum in stadtnaher und dennoch ruhiger Lage zu erwerben. Ob zur Eigennutzung oder als Kapitalanlage-hier erwartet sie ein solides Fundament mit viel Potenzial.
Bitte beachten Sie:
Trotz der von uns aufgewandten Sorgfalt können wir für die Richtigkeit und Vollständigkeit des Angebotes keine Haftung übernehmen, da wir auf Angaben Dritter angewiesen sind.
Nutzen Sie unsere vielfältigen Möglichkeiten zum Verkauf Ihrer Immobilien!
Fachwissen und Erfahrung für Sie!
Seit 1982 in Bremen, Beratung telefonisch oder auch vor Ort in unserer Geschäftsstelle direkt an der
Wilhelm-Kaisen-Brücke/Domsheide!
Ansprechpartner: Herr Werner Sauer
Sauer Immobilien
Tiefer 15
28195 Bremen
Tel.: 0421 / 49 00 00
Fax: 0421 / 49 08 50
E-Mail: info@sauer-bremen.de
Web: www.sauer-bremen.de
Lage
Der Halmerweg liegt ruhig, aber verkehrsgünstig in Bremen-Gröpelingen. In direkter Umgebung finden Sie Einkaufsmöglichkeiten, Schulen, Kindergärten sowie Anbindungen an den ÖPNV (Straßenbahnlinie 2 /10). Die Bremer Innenstadt erreichen Sie in ca. 20 Minuten. Die Nähe zum Waller Park sowie zur Weser lädt zu Spaziergängen, Sport und Freizeitaktivitäten ein.
Die dargestellte Position der Immobilie ist nur eine ungefähre Angabe.

































